Detalles de Propiedades

Vivienda Dúplex

Inversión total

$ USD

Valor de Mercado

$ USD

Precio Proyectado

$ USD

Beneficio Estimado

$ USD

Retorno (ROI)

%

Costo Const

$ USD

Soft costs

$ USD

Contingencia

%

Costo terreno

$ USD

Hab
3

Baños
2

Garajes
1

Área constr
0,28 sq ft

Constr
15303 sq ft

Servicios

Vivienda Dúplex

Desarrollo de dúplex con distribución simétrica, que integra dos dormitorios, un espacio para oficina, zona social abierta, muros cortafuego reglamentarios, equipos de climatización exterior, garaje independiente, área de lavandería y terraza cubierta.

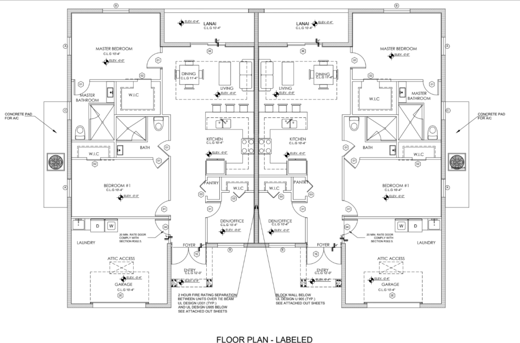
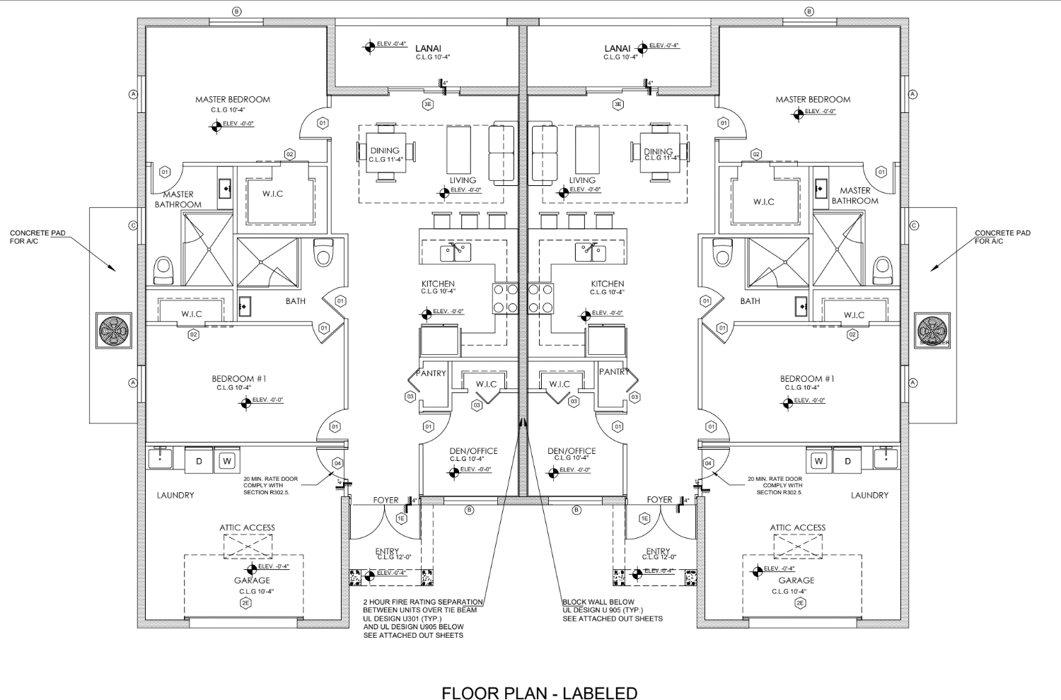
El plano arquitectónico corresponde a una vivienda dúplex con configuración simétrica tipo espejo. Cada unidad habitacional está compuesta por dos dormitorios, un espacio adicional destinado a oficina o estudio, y una zona social de diseño abierto que integra cocina, comedor y sala de estar. La documentación incluye especificaciones técnicas clave, tales como la incorporación de muros cortafuego reglamentarios entre ambas unidades y la disposición exterior de los equipos de climatización.
Asimismo, cada vivienda incorpora un garaje independiente, un área de lavandería separada y una terraza cubierta destinada al uso recreativo. Este conjunto de planos constituye la base técnica para la ejecución, organización funcional y distribución espacial de una edificación multifamiliar.

Propiedades relacionadas

2313 sq ft
1
3
3

Anual

12,0%

Meses

12

Rentabilidad

26,9% – 49,7%

15303 sq ft
3
2
1

Anual

%

Meses

Rentabilidad

%

Planos

Planta: Plano Vista Superior

Planta: Plano vista Exterior

Planos Distribución

Realice un recorrido en video

Mira el vídeo para tomar tu decisión fácilmente.

Servicios prestados

Alcance del servicio de gerenciamiento.

El servicio considera la planificación, coordinación, control y supervisión integral de todas las etapas del proyecto, desde la definición del alcance hasta el cierre formal y la entrega al mandante.

Planificación y organización inicial

Definición de alcance, cronograma maestro, ruta crítica y matriz de riesgos, estableciendo objetivos claros y medibles desde el inicio.

Coordinación técnica y administrativa

Coordinación con arquitectos, ingenieros, contratistas y organismos públicos, asegurando compatibilidad de especialidades y cumplimiento normativo.

Gestión de contratos y proveedores

Apoyo en licitaciones, comparativos técnico–económicos, contratos de obra, garantías y seguros, velando por el cumplimiento de cada acuerdo.

Control de costos y presupuesto

Presupuesto base, control de desvíos, estados de pago, flujo de caja y órdenes de cambio, con información financiera clara y oportuna.

Supervisión de obra y calidad

Visitas regulares a obra, control de partidas críticas y reportes fotográficos, verificando el cumplimiento técnico y de estándares constructivos.

Gestión de riesgos y cierre del proyecto

Monitoreo continuo de riesgos, planes correctivos, punch list, certificaciones, garantías y entrega final del proyecto con documentación completa.

Esquema económico

Estructura de honorarios y forma de trabajo

Los honorarios se estructuran en función de las horas profesionales, los objetivos trazados y el cumplimiento de metas asociadas al avance del proyecto.

Etapas consideradas

  • Etapa previa / planificación inicial:
    levantamiento de información, definición de alcance, cronograma maestro, riesgos y estándares de calidad.
  • Gestión técnica y administrativa:
    coordinación con arquitectos e ingenieros, permisos, licencias y compatibilización de especialidades.
  • Gestión de contratistas y proveedores:
    bases, llamados a cotización, evaluación de ofertas y control contractual.

Control financiero y supervisión

  • Control financiero del proyecto:
    presupuesto base, estados de pago, flujo de caja e informes periódicos.
  • Supervisión de obra / control de avance:
    visitas regulares a obra, reportes fotográficos, control de calidad y seguimiento de cronograma.
  • Gestión de riesgos y cierre:
    planes correctivos, punch list, certificaciones, garantías y acta de cierre con informe final de gestión.